
FluidFlow
DESIGNER HANDBOOK
© Flite Software NI Ltd
1 Introduction 3
2 FluidFlow User Interface. 4
3 Liquid Flow Modeling 5
3.1 Liquid Design Exercise 1 5
3.2 Liquid Design Exercise 2 – Auto-Sized Pump, Pipes & Control Valve. 15
4 Compressible Flow Modeling. 28
4.1 Calculation Settings – Compressible Flow. 28
4.2 Gas System Design Exercise 1. 29
5 Two-Phase (Liquid-Gas) Flow Modeling. 39
5.1 Calculation Settings – Two-Phase Flow. 39
5.2 Option 1: Two-Phase Design Exercise 1 (Changing Quality System). 40
5.3 Option 2: Two-Phase Design Exercise 2 (Constant Quality System). 47
5.4 Option 3: Two-Phase Design Exercise 3 (Changing Quality System). 52
6 Non-Newtonian Non-Settling Slurry Flow 55
6.1 Non-Newtonian Design Exercise 1 55
7 Settling Slurry Flow 63
7.1 Calculation Settings – Settling Slurry Flow. 63
7.2 Settling Slurry Design Exercise 1 64
8 Pulp & Paper Stock Flow 70
8.1 Calculation Settings – Pulp & Paper Stock Flow. 70
8.2 Pulp & Paper Stock Design Exercise 1 71
9 Auto-Equipment Sizing 75
9.1 Auto-Equipment Sizing Design Exercise 1 75
10 FluidFlow FAQ’s 80
1. Introduction
FluidFlow is designed to allow the modelling of fluid behavior within complex piping systems, and accurately predict how the system will work for a given set of boundary conditions. The software uses a number of well-established models and correlations to solve the piping systems.
The purpose of this document is to give new users a brief overview of how to develop models using the software, how to apply different design methodologies and correlations.
This designer handbook includes a number of design examples to help you begin using the software. The design exercises are split in accordance with the various FluidFlow Modules available, i.e., Liquid, Gas, Two-Phase (Liquid-Gas), non-Newtonian, Settling Slurry, Pulp & Paper Stock flow.
The software includes powerful auto-sizing functionality and to this end, a design example is included at the end of the document.
FluidFlow is provided with a comprehensive database of fluids, pumps, valves, pipes and components and also allows you to model non-standard fittings. This therefore means we can model practically any pipe fitting. Users can also add new fluids and components to the database, a task which you only need to complete once as the data will be stored for future modeling projects.
Heat transfer functionality is also included with each Module as standard, i.e., no extra cost.
There is no limit to the number of nodes you use to build your model, allowing greater modeling flexibility.
This document also contains a list of FAQ’s which you are free to peruse at your convenience.
FluidFlow users have reported that the software has saved approximately 80% of engineer’s time vs excel when solving systems and 40% when compared to other software applications. The highly intuitive user interface combined with a database of fluids and components has helped engineers get to grips with the program efficiently. This combined with world class technical product support helps you model your specific systems in an instant.
If you have a specific design application and wish to use an intuitive user friendly program to speed up your design process, contact us at: support@fluidflowinfo.com.
2. FluidFlow User Interface
FluidFlow is based on a single user interface (Figure 2.1.1) which is used for all Modules, i.e., liquids, gases, slurry, two-phase flow, etc. This permits greater modelling freedom and eliminates the need to repeatedly re-build models if you wish to calculate as a liquid, gas, two-phase system, etc.
The user interface is quite simple, which promotes faster model building. Models are developed on the flowsheet using the components available on the Component Palette. We can then quickly edit default design data for each node using the Input tab of the Data Palette. Once we calculate a model, the results can be viewed on the Results tab of the Data Palette.
The Status Bar at the bottom of the flowsheet allows us to quickly view the calculation settings assigned to the model.

Figure 2.1.1: User Interface.
We have developed this user-interface based on feedback from engineers and designers over the years and our users enjoy the simplicity of the user interface as it permits fast and effective model development.
3. Liquid Flow Modeling
1. Liquid Design Exercise 1
Calculate the pressure loss, flow rate and heat transfer for a 12.0 M long 4 inch schedule 40 steel pipe (uninsulated) transporting water at 82oC. The pipe inlet pressure shall be 1.5 barg with an outlet pressure of 1.0 bar g. The pipe shall include 6 bends and a single butterfly isolation valve.
Step 1: The first step is to consider the boundary nodes to use for the system. Since we know the inlet and outlet pressure, we can use the Known or Assigned Pressure node available from the Boundaries tab on the Component Palette (Fig 3.1.1).

Figure 3.1.1: Known Pressure Node.
Place two of these nodes (inlet & outlet) on the flowsheet by left mouse-clicking on the icon on the Component Palette. To place the node on the flowsheet we need to left mouse-click in the desired location (Fig 3.1.2).

Figure 3.1.2: Known Pressure Nodes.
This represents our pipe boundaries. We can now connect the boundaries by selecting the desired pipe material from the Component Palette. In this design case, we know the pipe is schedule 40 steel pipe. We therefore need to select the Steel Pipe or Duct icon from the Component Palette (Fig 3.1.3).

Figure 3.1.3: Steel Pipe of Duct Icon.
To connect the boundaries, left mouse-click directly over the inlet boundary node (node 1) and again, left mouse-click directly over the outlet boundary node (node 2). Note, when you position the mouse selector above the boundary node on the flowsheet, you will see the selector change to a green “tick” symbol. This indicates that the software is ready to connect our new node.

Figure 3.1.4: Base Model.
At this stage, we will notice that the software automatically assigns a unique User Number (reference Number) to each node placed on the flowsheet. All boundaries and fittings have positive User Numbers whereas all pipes have negative User Numbers. In Figure 3.1.4 we can see that the inlet and outlet boundaries are assigned with User Number 1 & 2 respectively and the single pipe is assigned with the User Number -1. Note, if these reference values have not appeared automatically, they may be toggled off. You can toggle these back on by selecting the buttons to the left of the flowsheet titled “Show or Hide Node Numbers” and “Show or Hide Pipe Numbers”. The buttons appear as follows:

The automatic assignment of User Numbers helps us differentiate each of the nodes when we interrogate our systems – post calculation. This will become more apparent later.
To complete the model connectivity, we need to include a bend and butterfly valve node. Select the bend icon from the Junctions tab and insert near the end of the pipeline. Now select the butterfly valve icon from the Valves tab and insert near the beginning of the pipeline. The final model should appear as shown in Figure 3.1.5.

Figure 3.1.5: Completed Model.
You will note how the software automatically updates the node User Numbers during the model development.
Step 2: The next step is to edit the default data for each of the nodes placed on the flowsheet. Let’s begin with the boundaries. We know the intended pressure units are in barg for both the inlet and outlet boundary. We can edit multiple nodes at once which will help speed up model development.
Left mouse-click on the inlet boundary (node 1) and whilst holding the SHIFT key, left mouse-click on the outlet boundary (node 2). You should now see both nodes highlighted on the flowsheet. We can now edit the data-entry for both nodes at once from the Input Inspector on the Data Palette (Fig 3.1.6).

Figure 3.1.6: Input Inspector.
In this case we need to change the Pressure Unit from the default atm setting to barg. Left mouse-click on the Pressure Unit field and you will see a down-arrow symbol appear on the right hand side. Click on this symbol and a drop-down menu will appear showing the various units you can choose from. Select barg from the list. We have now successfully changed the pressure units for both nodes.

Figure 3.1.7: Pressure Units.
We can also change the design inlet pressure and fluid temperature by selecting node 1 and changing the pressure to 1.5 barg and the temperature to 82oC.
Let’s now edit the default pipe data. We have a total pipe length of 12.0 M. We are going to assume three equal segment lengths of 4.0 M each. Once again, we can edit multiple common nodes. Let’s use a different approach.
Select the List tab on the Data Palette and place a “check-mark” in the field titled “Pipes” (Figure 3.1.8). The software will now list all pipes in the flowsheet including their User Numbers.

Figure 3.1.8: Pipe List.
You can multi-select the pipes in the flowsheet by selecting the first pipe on the list, holding the SHIFT key and finally, selecting the last pipe on the list. You will then see all pipes marked off on the List and also on the flowsheet.
Click on the Input Inspector and enter a length of 4.0 M for all three pipes. To change the pipe diameter, click on the field titled Nominal Size and a drop-down menu will appear. Click on this menu as this will allow us to access the pipes database. From the list of available pipe sizes, click on 4 inch to view the various pipe classifications for this diameter. Select Schedule 40 followed by OK to complete this change.
Now change the Heat Loss Model for all three pipes from the Input Inspector from Ignore Heat Loss/Gain to Do Heat Loss Calculation. A number of additional fields will now appear. Since the pipe is uninsulated, we need to change the field for Use Insulation from Yes to No. We can accept the default values for Heat Transfer Coefficient (U Value), Local Ambient Temperature, Surface Emissivity & Local Wind Speed.
The final step is to complete the data-entry for the fittings. Click on the bend node and from the Input Inspector, set the Quantity field to 6. We are going to leave all other parameters as default for this design case.
Now select the butterfly valve on the flowsheet. From the Input Inspector, we can see that the valve is 100% fully open and the Valve Name is Generic Butterfly Valve – Miller Data. For the purposes of this exercise, we are going to use this valve type. If however we wish to model an alternative valve from the database, we can select the Valve Name field, select the drop-down menu and choose the desired valve from the database.
Note, this entire system is horizontal and as such, we have left all node elevations as 0 M. If we wish to set changes in system elevations, we would define the elevation values at all boundaries and fittings using the Input Inspector.
Step 3: Calculate the model using the Calculate button located at the top of the flowsheet. You may now notice that the three pipes have been highlighted in RED, indicating we have a warning message associated with each pipe element. If we select the Messages tab on the Data Palette, we can view all warnings for the model including a description of each.
Note, warnings are enunciated by the software automatically to help the user eliminate any unwanted operating conditions and to prompt the user to develop a more efficient system design. Warnings should always be reviewed and considered by the engineer. You can evaluate and choose to ignore warnings if you wish.
The three warnings associated with this model are outlined in Figure 3.1.9. Each warning is displayed together with the User Number of the node which it relates to in brackets. If you select a warning, the node it relates to is automatically highlighted on the flowsheet. This interaction helps us quickly troubleshoot our models.

Figure 3.1.9: Warning Messages.
In this case, we have three high velocity warnings. If we review the Results tab followed by pipe node -1, we can see all calculated values for this pipe. Figure 3.1.10 provides an overview of these results.

Figure 3.1.10: Calculated Results.
Warnings are enunciated based on the settings defined in Warnings & Hints. You can view these set-points by selecting: Options | Warnings & Hints or alternatively, select the Warnings & Hints icon at the top of the flowsheet.
Warnings & Hints icon:
![]()
Since we are modeling a liquid system, we are only interested in the Liquid Limits (Figure 3.1.11).

Figure 3.1.11: Warnings & Hints - Liquid Limits.
As we can see in Figure 3.1.10, the actual flowing velocity of the fluid is 4.93 m/s. The high velocity warning is enunciated since this flowing velocity is higher than the maximum velocity level set in our warnings (4 m/s – See Figure 3.1.11).
We can therefore give some consideration to changing this pipe diameter to develop a more efficient design. To help us, FluidFlow automatically calculates an Economic Velocity and associated Exact Economic Size for each pipe in the model. These results can be viewed on the Results tab (Figure 3.1.10) and are provided as a suggestion in order to help develop an efficient system design. Note, it is down to the engineer’s discretion as to whether or not the actual pipe size needs to be changed to be more in line with that suggested by the software. Therefore, the results for Economic Velocity and associated Exact Economic Size are suggested values only and do not have any effect on the overall operating conditions for the system.
For the purposes of this exercise, we are going to ignore these warnings and continue with the 4 inch schedule 40 pipework.
Results: We have established that the pressure loss across each element in this system and that the total pressure loss will be:
Stagnation Pressure at inlet boundary (Node 1): 251325 Pa.
Stagnation Pressure at outlet boundary (Node 2): 201325 Pa.
Pressure Loss: 50000 Pa.
We know this is correct since we had an inlet pressure of 1.5 barg and an outlet pressure of 1.0 barg which gives us a difference of 0.5 bar g or, 50000 Pa.
The flow rate is calculated as 39.331 kg/s. Note, we can change our units by right mouse-clicking on the Results tab followed by selecting Results Units from the drop-down menu. Alternatively, you can select F9. This opens a new dialog as per Figure 3.1.12.

Figure 3.1.12: Set Result Units Dialog.
Let’s select volumetric flow units of m3/h followed by OK. The result for flow will change automatically to 145.9 m3/h.
The amount of heat transferred for each pipe can be viewed on the Results tab. Pipe node -1 as a heat loss of 1.7 kW. If we quickly view the results for the other two pipes in the model, we can see that they also have a heat loss of 1.7 kW which is what we would expect since they are all the same length and diameter.
If we wish to reduce this heat loss and consider the effects of adding insulation. Let’s multi-select the pipes on the flowsheet using yet another approach. Select the 'Edit | Select | Select Pipes' menu item. All pipes will now be marked-off on the flowsheet. From the Input Inspector, change the field for Use Insulation from No to Yes. We can choose from a range of insulation materials and thicknesses, in this case, we will accept mineral wool and the thickness of 25mm.
Based on these changes, we now need to recalculate the model to refresh our results. Once complete, we can see that the amount of heat loss in each pipe has reduced from 1.7 kW to 0.16 kW.
FluidFlow also plots the system resistance curve for all pipes. You can view this curve plot by selecting the Chart tab on the Data Palette. Figure 3.1.13 provides an illustration of the resistance curve for pipe node -1. The duty-point is denoted by the red indicator.

Figure 3.1.13: System Resistance Curve.
If you wish to plot a hydraulic and energy grade line (HGL/EGL) for the system, you can generate this plot by selecting the 'Tools | Composite Chart Setup...' menu item.
Selecting this option opens a new dialog as per Figure 3.1.14.

Figure 3.1.14: Setup Composite Plot.
Click on the tab titled “EGL and HGL”. We must now choose the starting point for the plot. In this case, we start the plot at the inlet boundary (node 1) and end it at the main outlet (node 2). Select Plot when this data-entry is complete and a graph shall appear as per Figure 3.1.15.

Figure 3.1.15: EGL and HGL Graph Plot.
This graph plot helps us identify any potential trouble-spots in our system. Select Close to exit the graph.
Note, you can improve the presentation of your model by selecting all pipes and changing the Draw Thickness and Draw Color from the Input Inspector. We have set the Draw Thickness to 3 and Draw Color to clRed. We also multi-selected the main inlet and outlet boundaries (holding the SHIFT key) and from the Input Inspector, changed the field titled Properties on Flowsheet from Hide to Show. We then selected the field titled Properties and from the Input list. Placed a check-mark in the box for: Pressure and Elevation. We then changed the Font to Bold and Size 11.
The model now appears as per Figure 3.1.16.

Figure 3.1.16: Updated Model.
2. Liquid Design Exercise 2 – Auto-Sized Pump, Pipes & Control Valve
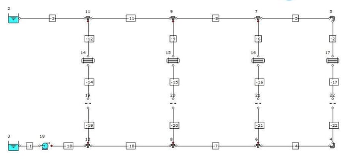
We are required to build the model as shown in Figure 3.2.1 using schedule 40 steel pipework and automatically size the pump, pipes and butterfly flow control valve. The system shall be provided with a single centrifugal pump to transport water at 20oC through a network of pipework to two outlets discharging at a pressure of 1.1 barg. The lower outlet shall be provided with a flow control device to control the flow based on the design requirements outlined below. The system pipework shall have a total length of 866.5 M.
The system design parameters are as follows:
- Pump Design Flow Rate: 46 m3/h.
- Control Valve Design Flow Rate: 10 m3/h.
- Design Pipe Velocity: 1.55 m/s.

Figure 3.2.1: Auto-Sized Pump, Pipes & Control Valve.
We are required to calculate the duty pressure rise and NPSHa for the pump, the Cv for the control valve and the optimum pipe diameter for the plant.
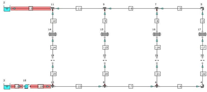
Step 1: Using the lessons learned from Liquid Design Exercise 1, place the three boundaries (one inlet and two outlets) on the flowsheet. Select Steel Pipe or Duct from the Pipes tab on the Component Palette and “draw” the model layout by positioning the mouse selector directly over the inlet boundary (node 1) and left mouse-clicking in the location of end node 2. Click directly over bend node 2 and terminate the pipe in the location of bend node 3. Follow this procedure until the model has been developed as per Figure 2.2.1. You will notice as you develop the model that the software automatically assigns a bend where we have two pipe connections and a tee where we have three pipe connections. Where we have a tee junction, it is important to correctly assign the branch (RED DOT) position. In this case, the branch is pipe node -8.
Note, the RED DOT denotes a branch at tee junctions and the channel (combined flow) at wye junctions. Further information on the correct assignment of the RED DOT is available from the Nomenclature field on the Input Inspector for tee/wye junctions and also in the Help file. Figure 3.2.2 provides an overview of the RED DOT positioning.

Figure 3.2.2: Red Dot Positioning.
When the connectivity is complete, insert a pump by selecting the Boosters tab on the Component Palette, choose the Centrifugal Pump icon and insert in the location shown on the diagram. You will notice a RED DOT appears when we insert a pump into a model. This simply denotes the discharge side of the pump. This can be switched using the field titled “Discharge Pipe (RED)” on the Input Inspector. Take care to assign the RED DOT correctly. Note, if this model included a check valve, we would also need to review the “Discharge Pipe (RED)” assignment for this component to ensure it matches that of the pump.
Finally, we must select the Controllers tab on the Component Palette, choose the Flow Control Valve icon and insert in the position shown. We are now ready to edit our design data.
Step 2: The next step is to edit the default data for each of the nodes placed on the flowsheet. Let’s start with our boundaries. Select all boundaries by clicking on the List tab on the Data Palette and placing a check-mark in the option titled “Boundaries”.

Figure 3.2.3: Check Boundaries on the List Tab.
You will see all boundaries in the model in a list. Select the first boundary, hold the SHIFT key and select the last. All boundaries will now be highlighted and marked off on the flowsheet. We can then select the Input Inspector and edit the properties for all three nodes at once.
Let’s change the Pressure Unit for all three nodes from atm to barg. Click anywhere on the flowsheet (not on the actual model). This allows us to deselect these nodes. Now select the inlet boundary and set the inlet pressure to 1.3 barg and fluid temperature to 20oC. Select one exit boundary on the flowsheet and whilst holding the shift key, select the second. Once again, select the Input Inspector and set the pressure to 1.1 barg for both exit nodes at once.
Note, the only important parameter for the exit boundaries is pressure. All other parameters such as the default temperature of 15oC will be overwritten by the actual flowing fluid conditions.
Now we can consider the pipes. We need to define the lengths as shown in Figure 3.2.1 and described in Table 3.2.1 using the Input Inspector.
Table 3.2.1: Pipe Lengths.
| Pipe User Number | Pipe Length (m) | Pipe User Number | Pipe Length (m) |
|---|---|---|---|
| -1 | 1.5 | -4 | 25 |
| -6 | 5.0 | -5 | 10 |
| -2 | 50 | -8 | 5 |
| -3 | 750 | -9 | 5 |
| -7 | 25 |
By default, all pipes are 2 inch schedule 40. As we are going to allow the software to automatically size the pipes for this system, we are going to leave this nominal pipe size for the moment. However, we will define the design velocity of 1.55 m/s for all pipes in the system by multi-select all pipes.
Select the 'Edit | Select | Select Pipes' menu item. All pipes will now be marked-off on the flowsheet. From the Input Inspector, change the field for Sizing Model from Economic Velocity to By Velocity. We can then enter a value of 1.55 for the Design Velocity and m/s for Velocity Unit.
Select the pump node followed by the Input Inspector. From here we can set the Automatically Size function from Off to On. Set the Sizing Model to Size for Flow and enter a value of 46 for Design Flow and m3/h for the field Flow Unit.
Finally, select the control valve on the flowsheet and from the Input Inspector, set the Automatically Size function from Off to On. As the control valve is a butterfly valve, we need to set the Control Valve Type to Butterfly (Xt=0.38). The default Design Flow and Flow Unit is 10 m3/h which matches our design requirement. We shall therefore retain this value.
This system is based on all nodes having an elevation of zero and as such, we can retain the default values.
Step 3: Calculate the model using the Calculate button located at the top of the flowsheet. You may now notice that all pipes have been highlighted in RED, indicating we have a warning message associated with each pipe element. If we select the Messages tab on the Data Palette, we can view all warnings for the model including a description of each.
In this case, we have seven high velocity warnings. If we select pipe -1 on the flowsheet followed by the Results tab, we can see all calculated values for this specific pipe. Figure 3.2.4 provides an overview of these results.

Figure 3.2.4: Pipe -1 Calculated Results (2 Inch Pipe).
As we can see in Figure 3.2.4, based on the default 2 inch schedule 40 pipe, the actual flowing velocity of the fluid is 5.90 m/s. The high velocity warning is enunciated since this flowing velocity is higher than the maximum velocity level (4 m/s) set under the 'Options | Warnings & Hints | Liquid Limits' menu item.
As we have defined a design velocity for each pipe of 1.55 m/s, the software has automatically calculated the Exact Velocity Size required to match this design requirement. In the case of pipe -1, the Exact Velocity Size is 102.5 mm and we can see that the 2 inch schedule 40 pipe equates to an internal diameter of just 52.5mm.
We can now view the results for each pipe and consider changing the actual pipe diameter to the next closest standard pipe size to that suggested by the software. The pipe sizes suggested by the software are summarised in Table 3.2.2.
Table 3.2.2: Auto-Sized Pipes.
| Pipe User Number | Exact Velocity Pipe Size (mm) | Standard Pipe Size Selected | Pipe User Number | Exact Velocity Pipe Size (mm) | Standard Pipe Size Selected |
|---|---|---|---|---|---|
| -1 | 102.5 | 4 Inch | -4 | 90.8 | 3 Inch |
| -6 | 102.5 | 4 Inch | -5 | 90.8 | 3 Inch |
| -2 | 102.5 | 4 Inch | -8 | 47.8 | 2 Inch |
| -3 | 102.5 | 4 Inch | -9 | 47.8 | 2 Inch |
| -7 | 102.5 | 4 Inch |
We can multi-select pipes -1 to -7 by holding the SHIFT key and left mouse-clicking on each pipe and change the Nominal Size to on the Input Inspector to 4 inch Schedule 40. When you select the field Nominal Size, click on the drop-down menu which appears on the right hand side as this will open the pipes database. From this database, click on the arrow adjacent “4 Inch” as this will expand the list of available pipe classifications for this size. Select Schedule 40 followed by, OK.
We can follow the same steps when changing the Nominal Size for pipes -4 & -5 (3 Inch). Note, pipes -8 & -9 shall be retained as 2 inch Schedule 40.
Now we can recalculate the model to study the effects of these changes. The pipe warnings should have disappeared and we should now only have a single warning associated with tee junction, node 9. This warning indicates that the calculated K value for the tee junction is outside the range of experimental data based on Idlechik relationships.
Note, FluidFlow calculates correctly for reducing Tees, provided that you are using Idelchik, Miller or SAE types. This tee junction has connecting pipe sizes 4 Inch, 3 Inch and 2 Inch and pressure conversion effects from velocity to static or vice versa are taken into account when calculating pressure losses at the tee. Click on the tee, select the Input Tab and click the Nomenclature row in the Input Inspector if you need further information. For tees having 3 different branch sizes, the loss relationships need to be extrapolated and you may find that you have warning messages to this effect.
Warning messages are there to help you decide if you need to make design changes. In this case the warning messages refer to the possible loss of calculation accuracy in the tee junctions because relationship data has been extrapolated. Since there are no other available pressure loss relationships available for these types of reducing tees we have no choice but to accept this warning. Still it is worthwhile checking on the calculated K values to ensure these are within an expected range (-2 to 10). You can also cross-check by using another tee definition/loss relationship (say Miller type) and verify that the calculated K values and pressure losses are similar. This is the case here and so we can safely ignore the warnings.
We can now review the calculated results for the pump (Figure 3.2.5).

Figure 3.2.5: Pump Results.
Based on our design flow rate and system configuration, the pump will have a duty pressure rise of 189778 Pa. The NPSHa is calculated as 23.4 m fluid. If we wish to view the duty pressure rise using m fluid (head units), we can simply right mouse-click on the Results tab and select Results Units. Change the field for Pressure/Head Drop to m fluid and set the desired decimal point position. In this case, the duty pressure rise is 19 m fluid. We know this to be true since H = P/ρg (H = 189778/998.49.80665 = 19 m fluid).
We now have enough information to approach a pump vendor to select a suitable pump for our system.
The calculated Cv for the control valve is 30.0 usgm/psi and we know the flow rate and pressure loss. Figure 3.2.6 outlines the results for the control valve.

Figure 3.2.6: Control Valve Results.
We therefore also have enough information to approach a vendor to select a suitable valve for our system.
Once the supplier has provided us with the performance data (curve relationships, etc.), we can define this information in the software database and model these specific components in our system. Note, you only need to add a component to the database once, then it will be stored for all future modeling projects.
We can also complete a quick check on the pumps and valves already stored in the database with the view to selecting a suitable element. Let’s start with the control valve. Select the 'Tools | Equipment Performance | Control Valve Performance' menu item. A new dialog will appear as per Figure 3.2.7.

Figure 3.2.7: Control Valve Performance.
As we can see, having viewed a number of valves, the Keystone 2 Inch Butterfly Valve represents a reasonable valve selection which will have a valve opening position of approximately 43.6%.
Let’s view this valve in the database by selecting the 'Database | Control Valves' menu item and then selecting the 'Keystone | 2 Inch Butterfly Valve' record. Select the field titled Curve Data as this will open the Curve-Fit data as per Figure 3.2.8.

Figure 3.2.8: 2” Keystone Butterfly Valve Curve Relationship.
We can actually see from this curve that a Cv of 30 (y axis) would represent a valve position of approximately 46% (x axis) which is what the software has determined.
We can close this data by selecting OK on the Curve Fit dialog and OK on the Database Editor - Controllers.
Now let’s consider the pump. Select the 'Tools | Equipment Performance | Pump Performance' menu item. Enter a value of 46.0 m3/h for the Design Flow. As we can see in Figure 3.2.9, having viewed a number of pumps, the Peerless Pump (Model 8196 2x3x6) represents a reasonable selection. Based on this design flow rate, the pump will have an efficiency of approximately 76.03% whilst the pump BEP is 76.88%. The duty head would be 23.54 m fluid with a NPSHr of 2.44 m fluid.

Figure 3.2.9: Pump Performance.
Let’s model this specific valve and pump in the system. Firstly, select the valve on the flowsheet and set Automatically Size to Off. By coincidence, the 2” Butterfly Valve provided by default is the actual Keystone valve we wish to model. You can check this by clicking on the drop-down menu which appears when you select the field titled Valve Model on the Input Inspector. We will therefore retain this default selection.
Finally, select the pump node in the model and from the Input Inspector, set Automatically Size to Off. The Pump Model provided by default is the actual Peerless pump we wish to model. Once again, we will retain this default selection. Note, if you wish to model an alternative pump from the database, you simply select the Pump Model field, access the pumps database and choose the desired alternative pump.
Now we have selected our pump and valve, select Calculate to refresh the results based on these design changes. Select the pump on the flowsheet followed by the Results tab. Note the software has established the pump flow rate, duty pressure rise, efficiency, power NPSHa and NPSHr. This data can be seen in Figure 3.2.10.

Figure 3.2.10: Pump Results.
The flow rate is higher than what we require, i.e., 50 m3/h as opposed to 46 m3/h. We may therefore be in a position to optimise the performance of this pump. Before we do so, let’s view the Chart Tab on the Data Palette. Figure 3.2.11 provides an illustration of the duty point on the pump performance curves.

Figure 3.2.11: Pump Performance Curves.
Note, if the system curve doesn’t appear on your Chart plot, select the icon on the top left corner of the chart, as this will allow you to turn on/off the various curves and also change the flow and head units.
Let’s now attempt to optimize the plant. Select the pump on the flowsheet and from the Input Inspector, we can see the Impeller Diameter is set to 5.5 (inches) and the Operating Speed is set to 2850 (RPM). If we click on either of these fields, a new dialog appears titled Set Booster Changes (Figure 3.2.12).

Figure 3.2.12: Pump Speed & Impeller Diameter Range.
From here we can see that this pump has a minimum speed of 1450 and a maximum speed of 3600 RPM. The impeller diameter has a minimum size of 4.0 inches and a maximum of 6.1 inches. We can therefore set about modeling changes in either impeller diameter size or pump operating speed.
Let’s try reducing the pump speed to 2600 RPM and select OK. Once again, select Calculate to refresh our results. Figure 3.2.13 provides details of the updated results.

Figure 3.2.13: Pump Results – 2600 RPM.
As we can see, the flow rate now matches our requirement, the duty pressure rise is 19 m fluid which again, matches the auto-sized pump requirements and the duty power has reduced from 4 kW to just 3.1 kW. The NPSHa is also still within limits. We have therefore optimised the system and you will note we have an additional warning message for the pump indicating that the booster affinity laws have been applied.
If we select the control valve on the flowsheet followed by the Results tab, we can see the updated results for the valve (Figure 3.2.14). The valve is still controlling the desired flow rate to 10 m3/h with an opening position of 43%.

Figure 3.2.14: Control Valve Results @ 2600 RPM Pump Speed.
We can also view the duty point on the control valve curve by selecting the Chart tab (Figure 3.2.15).

Figure 3.2.15: Control Valve Duty Point.
If we view the results for pipe -4, we can see that the remainder of the flow 36 m3/h is now passing through this section of the plant which is what we would expect to see (46 – 10 = 36 m3/h ).
This model has demonstrated how we can auto-size pumps, control valves and pipes. The software allows us to auto-size relief devices, pressure control valves, fans, PD pumps, rotating PD pumps, orifice plates, nozzles and venturi tubes.
4. Compressible Flow Modeling
1. Calculation Settings – Compressible Flow
When modeling liquid systems, we can immediately start building the model on the flowsheet, edit default data and run the calculation. When modeling gas flow systems, we firstly need to consider the Calculation Settings we wish to use for the simulation.
If we are modeling a system where we intend to define a flow rate using volumetric units (m3/h, ft3/min) on the flowsheet, we need to give due consideration to the reference volumetric flow units used.
Generally the density of a gas flowing in any piping system is not constant. This means that it is not meaningful to specify gas flowrate in actual volume flow units without providing the temperature and pressure base at which the actual volume is referred to. It is common practice to refer to gas volume flow against a specified basis.
There are many bases available for referencing gas volumes. Today the most universally accepted reference is metric Standard Conditions (STP) which is defined by ISO 5024 at 15°C and 101325 Pascals. The American Gas Association and the International Gas Union both support the use of this reference.
Normal conditions (NTP), defined as 0°C and 101325 Pascals, are still used throughout Europe and FluidFlow can use either basis for your gas system. By setting the reference volumetric flow units, FluidFlow will establish the gas density and estimate all fluid physical properties.
FluidFlow also allows us to model gas flow systems using mass flow units, i.e., kg/h, lb/h, etc. This removes any ambiguity in relation to the gas flow rate, density, etc., and is often a useful approach to use when modeling gas systems.
To set your reference gas volumetric flow units, select: Options | Calculation | Gas.

Figure 4.1.1: Gas Calculation Settings.
When developing your model, you can always take a quick glance at the Status Bar at the bottom of the flowsheet as this allows us to quickly determine which reference gas volume flow units have been assigned to the open flowsheet. Figure 4.1.2 shows that, for this particular example, the flow units assigned are STP (15°C and 101325 Pascals).

Figure 4.1.2: Status Bar.
Note, this section of the Status Bar will only be present if the Gas Module is activated.
2. Gas System Design Exercise 1
In this example system, we have an offshore natural gas production platform exporting gas at 70 bara and 80oC via a 100.15 km (100150 M) of 20” buried sea-bed pipeline. The pipeline is modelled in three sections as follows:
Table 4.2.1: Pipe Data.
| Description | Pipe Length (M) | Overall Heat Transfer Coefficients (W/m2 oC) | Local (Air/Sea) Ambient Temperature (oC) | Insulation Thickness (mm) |
| Pipe segment exposed to air (no coating) | 50 | 19 | 10 | 25 |
| Pipe segment exposed to sea coated in 3mm polyethylene | 100 | 92 | 5 | 25 |
| Pipe segment running along the sea bed coated with 1.5mm PVC and 75mm concrete | 100000 | 14 | 5 | 25 |
The design flow rate at the system outlet is 6000000 Sm3/day.
The gas composition is as set out in Table 4.2.2.
Table 4.2.2: Gas Composition.
| Mol % | Component Fluid |
|---|---|
| 4.0 | Nitrogen |
| 3.0 | Carbon Dioxide |
| 82.0 | Methane |
| 8.0 | Ethane |
| 2.0 | Propane |
| 1.0 | Isobutane |
Step 1: Create this new fluid mixture in the fluids database. Select the 'Database | Fluids' menu item. This will open a new dialog titled Fluid Editor (Figure 4.2.1).

Figure 4.2.1: Fluid Editor.
Select the option titled New Mix from the bottom left hand corner. We will now be presented with a dialog box asking us to give our new fluid a unique name. Enter the name Gas Exercise 1 and select OK. A new dialog will appear titled New Mixture - Gas Exercise 1 (Figure 4.2.2).

Figure 4.2.2: New Mixture Dialog.
We can now choose any of the fluids already in the fluids database and assign them to the new mixture. You can scroll up/down through the list of fluids and double click on the fluid to add it to the mixture. When you double-click the fluid on the left hand side, it will automatically be moved across to the right hand side where we create the mixture.
We have added each of the fluids to the mixture together with the percentage of each. We also set the Mixture Type to Mole %, unchecked the option Allow Phase Change and placed a check-mark in the box titled Gas Phase Only. This simply means that we don’t wish to model the fluid in two-phase but in gas phase only.
The final fluid mixture should appear as per Figure 4.2.3.

Figure 4.2.3: New Gas Mixture.
Select OK on the New Mixture - Gas Exercise 1 dialog and OK on the Fluid Editor dialog. We have now added this new mixture to the database.
Step 2: The next step is to set the Calculation Settings for the flowsheet where we will build the model. We know the design flow rate in, in volumetric units is 6000000 Sm3/day. This corresponds to a flow rate based on STP conditions. We can therefore set our gas volumetric flow units accordingly.
Step 3: The next step is to lay out the model as per Figure 4.2.4.

Figure 4.2.4: Buried Seabed Natural Gas System.
Place a Known or Assigned Pressure node (available from the Boundaries tab) on the flowsheet to represent the system inlet. Then, place a Known or Assigned Flow node (available from the Boundaries tab) on the flowsheet to represent the system outlet.
Select Steel Pipe or Duct from the Pipes tab on the Component Palette and place the mouse selector directly over the Known or Assigned Pressure node. Left mouse-click on this inlet boundary to connect the pipe. Then, left mouse-click in the position of the first bend (sea level) in Figure 4.2.4. The pipe will have terminated with an Open Pipe node. Continue developing the model connectivity by left mouse-clicking on the Open Pipe node and terminate this second pipe in the position of the second bend. This pipe will also have terminated with an Open Pipe node but you should see the first Open Pipe node has now changed to a bend automatically.
Continue developing the model connectivity by left mouse-clicking on the latest Open Pipe node and terminate this final pipe in the position of the outlet boundary. The model connectivity should now be complete.
Step 4: Now we have completed the model connectivity, we can begin to edit the default design input information.
The data-entry for the main inlet node (node 1) should appear as per Figure 4.2.5.

Figure 4.2.5: System Inlet Data-Entry.
Note, this node has taken account of the inlet elevation.
The data-entry for the main outlet node (node 4) should appear as per Figure 4.2.6.

Figure 4.2.6: System Outlet Data-Entry.
Let’s now consider the bends. The data-entry for the bend located at sea level is set out in Figure 4.2.7.

Figure 4.2.7: Sea Level Bend Data-Entry.
The data-entry for the final bend located at the sea floor is set out in Figure 4.2.8.

Figure 4.2.8: Sea Floor Bend Data-Entry.
Now we can consider the pipes. We need to define the lengths as shown in Figure 4.2.4 and described in Table 4.2.1 using the Input Inspector.
The data-entry for the first pipe (shown in red) is set out in Figure 4.2.9.

Figure 4.2.9: Pipe Node -1 Data-Entry (Red Pipe).
The data-entry for the second pipe (shown in green) is set out in Figure 4.2.10.

Figure 4.2.10: Pipe Node -2 Data-Entry (Green Pipe).
The data-entry for the final horizontal pipe (shown in orange) is set out in Figure 4.2.11.

Figure 4.2.11: Pipe Node -3 Data-Entry (Orange Pipe).
Step 3: Calculate the model using the Calculate button located at the top of the flowsheet. The model solves without any warnings.
We can see that FluidFlow has estimated the outlet temperature and pressure of the gas to be 4.2oC and 50.3 bara. This correlates well as a test conducted by others produced an outlet temperature and pressure of 4.1oC and 50.9 bara.
Note, you can also view the gas density profile as the gas flows along the length of the 100km buried pipeline. Let’s consider pipe node -3. Select this pipe on the flowsheet and select the Chart tab on the Data Palette. Select the drop-down menu as shown in Figure 4.2.12.

Figure 4.2.12: Chart Options.
Choose the Density option. You should now see a curve relationship as outlined in Figure 4.2.13.

Figure 4.2.13: Density vs Pipe Length.
The above graph provides a classic representation of a density profile along a gas pipeline.
5. Two-Phase (Liquid-Gas) Flow Modeling
There are essentially three different approaches you can take to modelling two-phase systems in FluidFlow.
Option 1: Specify the quality (vapor quality) and design pressure of the two-phase fluid at the inlet boundaries in which case, FluidFlow will automatically determine the fluid physical properties, i.e., temperature, etc.
Option 2: Create liquid and gas mixtures dynamically on the flowsheet. When we adopt this approach, FluidFlow will automatically establish where the fluids mix, detect any changes in fluid phase state and apply the appropriate pressure loss correlation.
Option 3: Specify the design inlet pressure and temperature of the fluid in which case, FluidFlow will automatically determine the fluid physical properties, i.e., vapor quality, etc.
Note, FluidFlow will automatically track fluid phase state throughout your system and apply the appropriate pressure loss correlation. This section shall detail each of these three approaches.
Before we consider these design approaches, we must firstly consider the Calculation Settings we wish to apply to the system.
1. Calculation Settings – Two-Phase Flow
When modeling two-phase systems, we firstly need to consider the Calculation Settings we wish to use for the simulation.
FluidFlow includes eight different correlation options for two-phase systems which are outlined in Figure 5.1.1. To view or select any of these options, select: Options | Calculation | Two Phase.

Figure 5.1.1: FluidFlow Two-Phase Correlations.
The default two-phase correlation setting is Whalley Criteria. The Whalley Criteria option means the software will automatically consider the fluid physical properties (viscosity, mass flux, etc.) and apply the most appropriate correlation from the three available (Friedel, Chisholm or Lockhart Martinelli) as part of the Whalley Criteria. You can however select any of the correlations shown.
Note, when building or reviewing any model, we can quickly glance at the Status Bar at the bottom of the flowsheet to determine what calculation settings have been selected for the model we are developing. As we can see in Figure 5.1.2, the Whalley Criteria has been selected in this particular sample case.
![]()
Figure 5.1.2: FluidFlow Status Bar.
Another key point to note is that, if we are creating liquid-gas mixtures dynamically on the flowsheet and we intend to define a volumetric flow rate for the gas, we need to consider the STP and NTP settings. Note, there is further information on this topic in the gas flow modeling section of this handbook.
To set your reference gas volumetric flow units, select: Options | Calculation | Gas.
Let’s now consider the different means of modeling our two phase systems.
2. Option 1: Two-Phase Design Exercise 1 (Changing Quality System)
In this example we have a single fluid (R-152a) flowing through a system from a known pressure (node 1) at 1.18 atm through a shell and tube heat exchanger via a network of pipework. In developing this model, a fluid vapor quality of 18% (0.18) has been set at the inlet of the system - an approach which is often used for steam systems. When we use this approach, the software automatically calculates the fluid temperature which will be shown in the Results tab.
Let’s build the model as shown in Figure 5.2.1 using schedule 40 steel pipework. The system contains a single shell and tube heat exchanger with 30kW of heat energy being added to the system. The system includes elevation changes which are noted on the illustration below.

Figure 5.2.1: Changing Quality R152a Refrigerant System.
Step 1: The first step is to lay out the model as per Figure 5.2.1. Place a Known or Assigned Pressure node (available from the Boundaries tab) on the flowsheet to represent the system inlet. Select Steel Pipe or Duct from the Pipes tab and develop the model connectivity as shown. Notice when you terminate the pipe at the end of the model, the software automatically fits an Open Pipe node which of course assumes the pipe outlet is at atmospheric pressure. If you had planned to set a design pressure in this location then, we would need to change this Open Pipe node to a Known or Assigned Pressure node. We are going to proceed with an Open Pipe node in this design case.
Let’s add the heat exchanger. Select the Heat Exchangers tab on the Component Palette followed by Shell and Tube Heat Exchanger and insert into the model in the location shown.
Step 2: Now we have completed the model connectivity, we can begin to edit the default design input information.
The data-entry for the main inlet node (node 1) should appear as per Figure 5.2.2.

Figure 5.2.2: System Inlet Data-Entry.
Now we can consider the pipes. We need to define the lengths as shown in Figure 5.2.1 and described in Table 5.2.1 using the Input Inspector.
Table 5.2.1: Pipe Lengths.
| Pipe User Number | Pipe Length (M) | Nominal Size | Pipe User Number | Pipe Length (M) | Nominal Size |
|---|---|---|---|---|---|
| -1 | 10 | 2 Inch | -5 | 10 | 3 Inch |
| -2 | 8 | 2 Inch | -6 | 10 | 3 Inch |
| -3 | 8 | 2 Inch | -7 | 5 | 3 Inch |
| -4 | 5 | 2 Inch |
Now we need to consider changes in elevation. We set elevation changes at boundaries and fittings. We have already set the elevation for the main inlet boundary node. Let’s set the elevation of all other fittings in the model as shown in Figure 5.2.1 and described in Table 5.2.2. We can complete this data-entry using the Input Inspector.
Table 5.2.2: Plant Elevations.
| Description | Elevation (M) | Description | Elevation (M) |
|---|---|---|---|
| Known Pressure Node 1 | 6 | Heat Exchanger Node 8 | 4 |
| Bend Node 2 | 6 | Bend Node 5 | 0 |
| Bend Node 3 | 12 | Bend Node 6 | 0 |
| Bend Node 4 | 6 | Open Pipe Node 7 | 4 |
Note, all other Input properties for the bends and open pipe node shall remain as default.
The final data-entry step is for the heat exchanger node. In this case, we will leave the Pressure Loss Model as Standard Relationships. This model allows you to enter the geometric characteristics of the heat exchanger in which case, FluidFlow will solve the equations noted in the Help file under: Shell and Tube Exchanger | Calculation Method. For simplicity, we shall retain the default values for Number of Tubes, Tube Diameter, etc.
As we know we have 30 kW of heat being added to the plant via the heat exchanger, we can select the heat exchanger on the flowsheet and from the Input Inspector of the Data Palette, set the field titled Heat Loss Model from Ignore Heat Loss/Gain to Fixed Heat Transfer. This reveals a number of additional fields where we can define the heat transfer direction to/from the plant.
The data-entry for this heat exchanger should be completed as set out in Figure 5.2.3.

Figure 5.2.3: Heat Exchanger Data-Entry.
Step 3: Calculate the model using the Calculate button located at the top of the flowsheet. The model solves without any warnings.
Note, this system will be solved using the Whalley Criteria. The Whalley Criteria is the default two-phase correlation. Note, you can choose from eight correlation options available in FluidFlow by selecting: Options | Calculation | Two Phase (Figure 5.2.4).
By choosing Whalley Criteria, the software will automatically consider the fluid physical properties (viscosity, mass flux, etc.) and apply the most appropriate correlation from the three available (Friedel, Chisholm or Lockhart Martinelli) as part of the Whalley Criteria.

Figure 52.4: FluidFlow Two-Phase Correlations.
Note, when building or reviewing a model, we can quickly glance at the Status Bar at the bottom of the flowsheet to determine what calculation settings have been selected for the model we are developing. As we can see in Figure 5.2.5, the Whalley Criteria has been selected for this particular design case.
![]()
Figure 5.2.5: FluidFlow Status Bar.
If we select the first pipe in the model (pipe -1) and view the results, we can see that it has been solved using the Friedel correlation, and the liquid and gas superficial velocities are also calculated at the inlet and outlet of each pipe/element. Figure 5.2.6 provides an overview of the results calculated for this pipe.

Figure 5.2.6: Pipe -1 Calculated Results.
This is an example of two-phase flow with changing quality. This means that the vapor mass fraction is not constant and there is mass transfer between the fluid phases. You can see this in the results of all flowsheet elements.
Examine the vapor quality entering and leaving each node or pipe and you will see that quality is increasing as we flow through the system. This is because the pressure falls as the fluid flows down a pipe (or across a bend) and as a result, some of the liquid boils to form additional vapor. This is called flashing, and FluidFlow assumes that instantaneous isenthalpic flashing occurs. You should also notice that velocities are increasing and that mixture densities are decreasing.
At the heat exchanger we are adding some 30,000 watts of heat and this has the effect of vaporising additional liquid across this element. The vapor quality therefore increases from 0.19623 (19.62%) to 0.45780 (45.78%).
As an exercise change the Heat Loss Model at the exchanger from Fixed Transfer Rate to Ignore Heat Loss. What would you expect to happen to the vapor quality leaving the exchanger? It should decrease. You should also note that system flow will increase as a result.
FluidFlow also allows you to view the flow pattern map for any pipe in your two-phase model. For instance, select pipe -1 and on the Chart tab, select the flow pattern map option (Figure 5.2.7).

Figure 5.2.7: Flow Pattern Map Selection.
The software will automatically generate a flow pattern map for the pipe. The flow pattern map for pipe node -1 should appear as per Figure 5.2.8.

Figure 5.2.8: Flow Pattern Map Selection (Pipe -1).
We can see that the flow pattern for this pipe is just on the border of the stratified wavy flow regime. Let’s consider the following pipe in the model (node -2).
This is an inclined pipe which changes from an elevation of 6 M to 12 M. If we view the flow pattern map, we can see that the flow pattern is now annular mist (Figure 5.2.9). This is because the gas superficial velocity has increased as a result of the pipe inclination. A quick check of the results for both pipes should confirm this.

Figure 5.2.9: Flow Pattern Map Selection (Pipe -2).
3. Option 2: Two-Phase Design Exercise 2 (Constant Quality System)
In this example we shall create a two-phase mixture dynamically on the flowsheet. This requires a minimum of two inlet boundaries. One shall include a liquid and the other a gas. At the point where the two fluids mix, the software will automatically detect the two phase conditions and apply the two phase correlation. The design flow rate for the liquid (water) shall be 25 usgpm and 0.08023 kg/s for the air. The design temperature of the water shall be 29oC and for the 29oC air.
Note, this is an example of a constant quality system whereby the vapor quality of the fluid doesn’t change as the fluid flows through the system. This is attributed to the fact that we have a fixed flow of gas and liquid entering the system.
Let’s build the model as shown in Figure 5.3.1 using schedule 40 steel pipework. The system contains a single plate heat exchanger with a design temperature increase of 30oC across element. The elevation of all nodes in this system will be zero (default setting).

Figure 5.3.1: Constant Quality Air/Water System.
Step 1: The first step is to lay out the model as per Figure 5.3.1. Place two Known or Assigned Flow nodes (available from the Boundaries tab) on the flowsheet to represent the two system inlets.
Place two Known or Assigned Pressure nodes (available from the Boundaries tab) on the flowsheet to represent the two system outlets.
Place a single Connector node (available from the Junctions tab) on the flowsheet to represent the point where the two system fluids mix.
Add a Knock-Out Pot (liquid/vapor separator) to the flowsheet in the position shown. This node is available from the Heat Exchangers tab.
Select Steel Pipe or Duct from the Pipes tab and develop the model connectivity as shown.
Step 2: Now we have completed the model connectivity, we can begin to edit the default design input information.
The data-entry for the main inlet nodes (node 1 & 2) should appear as per Figures 5.3.2 & 5.3.3.

Figure 5.3.2: Data-Entry - Node 1 (Water Inlet).

Figure 5.3.3: Data-Entry - Node 2 (Air Inlet).
The data-entry for both outlet boundary nodes shall be based on the default data, i.e., 1 ATM Stagnation Pressure, etc. We therefore don’t need to edit the design input data of these nodes.
Now we can consider the pipes. We need to define the lengths as shown in Figure 5.3.1 and described in Table 5.3.1 using the Input Inspector.
Table 5.3.1: Pipe Lengths.
| Pipe User Number | Pipe Length (M) | Nominal Size | Pipe User Number | Pipe Length (M) | Nominal Size |
|---|---|---|---|---|---|
| -1 | 0.5 | 2 Inch | -4 | 5 | 6 Inch |
| -2 | 0.5 | 2 Inch | -5 | 10 | 2 Inch |
| -6 | 60 | 50.8mm ID | -7 | 10 | 2 Inch |
| -3 | 60 | 50.8mm ID |
When completing the data-entry for the pipes, we shall set the Status of both pipe nodes -1 & -2 to Ignore Pressure Loss on the Input Inspector. This means that the pressure loss for these pipes will be excluded from the calculation.
We shall retain the default settings for the Connector node which means, we just need to complete the data-entry for the heat exchanger and Knock-Out Pot.
Let’s edit the heat exchanger data. In this case, we will leave the Pressure Loss Model as Standard Relationships. This model allows you to enter the geometric characteristics of the heat exchanger in which case, FluidFlow will solve the equations noted in the Help file under: Plate Exchanger | Calculation Method. For simplicity, we shall retain the default values for Number of Plates, Plate Width, etc.
As we know we have 30oC of heat being added to the plant via the heat exchanger, we can select the heat exchanger on the flowsheet and from the Input Inspector of the Data Palette, set the field titled Heat Loss Model from Ignore Heat Loss/Gain to Fixed Temperature Change. This reveals a number of additional fields where we can define the heat transfer direction to/from the plant. The data-entry for the heat exchanger is as set out in Figure 5.3.4.

Figure 5.2.4: Heat Exchanger Data-Entry.
The last element to define is the Knock-Out Pot. The data-entry for this node is set out in Figure 5.3.5.

Figure 5.2.5: Knock Out Pot Data-Entry.
Note, in this design case, the pipe outlet at the top of the Knock-Out Pot is pipe -4 and the pipe connected to the bottom of the Knock-Out Pot is pipe node -5. We have therefore assigned the liquid and gas outlets in accordance with this connectivity.
Step 3: Before we solve the model, we need to consider the Calculation Settings. In this particular design case, we are going to solve the system using the Beggs Brill correlation. To assign this correlation to the system, select: Option | Calculation | Two Phase (Figure 5.3.6).

Figure 5.3.6: Calculation Settings - Beggs Brill.
Calculate the model using the Calculate button located at the top of the flowsheet. The model solves without any warnings.
Once again, we can quickly glance at the Status Bar at the bottom of the flowsheet to determine what calculation settings have been selected for the model we are developing. As we can see in Figure 5.3.7, the Beggs Brill correlation has been selected for this particular design case.
![]()
Figure 5.3.7: Status Bar.
If we select pipe node -3 in the model and view the results, we can see that it has been solved using the Beggs Brill correlation, and the flow pattern is Distributed (Figure 5.3.8).

Figure 5.2.8: Pipe -3 Calculated Results.
This is an example of two-phase flow with constant quality. This means that the vapor mass fraction is constant and there is no mass transfer between the fluid phases. It doesn’t mean that the pressure loss per unit length is constant or that the velocity between the two phases is constant.
In the first pipe section after mixing (pipe -6) you can see that the gas superficial velocity increases from the start to the end of pipe -6. For 60m of pipe -6, the static pressure loss is 146810 Pa, but the friction loss is 145368 Pa. Since the pipe is horizontal the difference is the acceleration loss. After the exchanger, the mixture has experienced a temperature increase of 30°C. The static pressure loss in the pipe after the exchanger (-3) is 208640 Pa (pipe -3 is identical in length and diameter to -6).
This is because gas volume and velocity as well as other fluid properties have changed with the increase in temperature in the outlet pipe. You can get a feel for the differences by displaying the Beggs Brill flow pattern map. To do this click on the pipe, then click on the chart tab in the Data Palette and then use the display button to select the flow pattern map. The flow pattern map for pipe -3 can be seen in Figure 5.3.9.

Figure 5.3.9: Flow Pattern Map Selection (Pipe -3).
The model includes a warning for the pipe immediately after the heat exchanger. The warning relates to the Beggs Brill Correlation used. The warning is to prompt you into using an alternative method as the Beggs Brill method is an incremental approach and may not be most suited to the system being modeled due to defined pipe lengths in the system, heat transfer conditions, etc. The prompt is to use an alternative approach such as Chisholm or Lockart Martinelli (non-incremental approaches) to solve the system. The results for each approach can be compared or if you have a preference, you can choose the preferred method.
4. Option 3: Two-Phase Design Exercise 3 (Changing Quality System)
The main difference between this changing quality system and that in the example titled “Two-Phase Design Exercise” is that, in this system, we have specified the design fluid temperature and pressure at the inlet whereas in the latter case, we specified the actual vapor quality.
Before we begin, we need to consider the two-phase calculation settings. In this example, we are going to set the two-phase correlation to Whalley Criteria (Options | Calculation | Two Phase | Whalley Criteria).
In the following example we have a single fluid (water) flowing through a pressure control valve from a known pressure inlet (node 1) at 2 ATM & 120oC to a second known pressure outlet node at 1 ATM.
Let’s build the model as shown in Figure 5.4.1 using schedule 40 steel pipework.

Figure 5.4.1: Changing Quality Water System.
Step 1: The first step is to lay out the model as per Figure 5.4.1. Place two Known or Assigned Pressure nodes (available from the Boundaries tab) on the flowsheet to represent the system inlet and outlet. Select Steel Pipe or Duct from the Pipes tab and develop the model connectivity as shown.
Let’s add the control valve. Select the Controllers tab from the Component Palette and select the Pressure Control Valve icon (Figure 5.4.2).

Figure 5.4.2: Pressure Control Valve.
Insert the element into the pipe as shown in Figure 5.4.1.
Step 2: Now we have completed the model connectivity, we can begin to edit the default design input information.
The data-entry for the main inlet node (node 1) should appear as per Figure 5.4.3.

Figure 5.4.3: System Inlet Data-Entry.
The data-entry for the outlet boundary node shall be based on the default data, i.e., 1 ATM Stagnation Pressure, etc. We therefore don’t need to edit the design input data of this node.
Now we can consider the pipes. We need to define the lengths as shown in Figure 5.4.1 and described in Table 5.4.1 using the Input Inspector.
Table 5.4.1: Pipe Lengths.
| Pipe User Number | Pipe Length (M) | Nominal Size | Pipe User Number | Pipe Length (M) | Nominal Size |
| -2 | 10.0 | 2 Inch | -1 | 10.0 | 2 Inch |
Now we need to consider node elevations. This model doesn’t include any elevation changes and as such, we can retain the default value of 0 M for each node.
The final data-entry step is for the pressure control valve node (Figure 5.4.4).

Figure 5.4.4: Data Entry - Pressure Control Valve.
Step 3: Calculate the model using the Calculate button located at the top of the flowsheet. The model solves without any warnings.
If we view the calculated results for the pipe node connected to the valve inlet, we can see the fluid is in liquid phase and the software has applied the Moody correlation. If we view the results for the pipe node connected to the valve outlet, we can see the fluid is in two-phase and the software has applied the Friedel correlation.
In this case, the hot water enters the valve at 120oC and drops 82 kPa across the valve. This reduces the pressure to below the saturation pressure for water and some of the hot water vaporises. The vapor quality (wt fraction of steam) leaving the control valve is 0.0288. As the two-phase mixture flows down the pipe, the pressure reduces further and additional liquid flashes. The final vapor quality leaving the system is 0.0378.
6. Non-Newtonian Non-Settling Slurry Flow
FluidFlow includes the following non-Newtonian viscosity correlation: Power Law, Herschel Bulkley, Bingham Plastic & Casson. Viscosity can be defined using two methods. We can Directly Define Constants or enter a table of Shear Stress vs Shear Rate. You can select the option which is more applicable based on the rheology data you have. When we enter the table of values for Shear Stress vs Shear Rate, we can check the validity of each of the four correlations as the software automatically fits the curve to the co-ordinates defined. You can then clearly see which option represents the most accurate curve-fit.
1. Non-Newtonian Design Exercise 1
Calculate the pressure gradient due to friction along a 1.0 M long 5.7 cm diameter pipe with a chalk slurry flow rate of 2.23 x 10-3 m3/s into the pipeline. The discharge pressure shall be 1 atm. The fluid viscosity data has been provided as a table of shear rate vs shear strain (Table 6.1.1). The fluid is described as a Power Law fluid and has a yield stress of 0.04 Pa and the fluid density is given as 1427 kg/m3.
Table 6.1.1: Fluid Viscosity Data.
| Shear Rate (s-1) | Shear Stress (Pa) |
|---|---|
| 1 | 0.04 |
| 10 | 0.18 |
| 40 | 0.4 |
| 100 | 0.8 |
Step 1: The first step is to add the new fluid to the fluids database. Select: Database | Fluids | Add. We will now be presented with a dialog box asking us to give our new fluid a unique name. Enter the name power law example and select OK. A new dialog will appear titled Fluid Editor (Figure 6.1.1). Select Non Newtonian Liquid as the Fluid Type on the top right hand corner.
You should now have a dialog which matches that shown in Figure 6.1.1.

Figure 6.1.1: Fluid Editor.
We can see that the physical property data we need to define in order to model the new fluid in the system includes density, specific heat, thermal conductivity, viscosity, and vapor pressure. However, we may not have all of this information for the fluid. This can be overcome as outlined below.
The two key physical property parameters we are interested in with non-Newtonian flow are density and viscosity. Let’s firstly consider density.
Fluid density can be entered either as a Fixed Value or as a Table, defining density versus temperature. In this design case, we can select Fixed Value for the Density Definition and enter a Fixed Density of 1427 kg/m3. Your data-entry for density should appear as shown in Figure 6.1.2.

Figure 6.1.2: Fluid Density.
Let’s now consider viscosity. Select the field titled Liquid Viscosity Definition on the Fluid Editor. A new dialog will appear titled Physical Property Editor – Liquid Viscosity.
Viscosity can be defined using two methods. We can Directly Define Constants or enter a Table of Shear Stress vs Shear Rate. You can select the option which is more applicable to the rheology data you have. In this case, we will select Shear Stress vs Shear Rate as the Viscosity Definition based on the data provided.
Select the field titled Shear stress-Shear rate to open a new dialog titled Curve Fit. Firstly we must set the Curve Fit Type to Power Law and enter the Yield Stress (Pa), in this case 0.04.
Now we can enter the relationship for Shear stress-Shear rate as per Table 6.1.1. The final data entry for viscosity should appear as per Figure 6.1.3.

Figure 6.1.3: Fluid Viscosity.
When complete, select OK on the Curve Fit dialog and OK on the Physical Property Editor – Liquid Viscosity dialog. This completes the viscosity data-entry.
Now all that remains is specific heat, thermal conductivity and vapor pressure.
Specific heat and thermal conductivity are properties which are only used if we are carrying out heat transfer analysis and in designing slurry pipelines, it is more often the case that a heat transfer calculation is not required. Hence thermodynamic properties are rarely available.
If the heat transfer calculation is not required, then it is recommended that the default values (those for water) are accepted. If the intention is to perform heat transfer calculations then this data must be entered correctly.
With regard to vapour pressure, again it’s unlikely that specific data will be available and so, FluidFlow provides the option of simply selecting the pre-set values for water. Remember, vapour pressure does not contribute to friction loss and is only important where system pressure falls below vapour pressure.
We have now defined all the physical property parameters for the fluid. You should note that the Liquid “light bulb” icon on the Fluid Editor dialog will illuminate when the data-entry is complete (Figure 6.1.4). Note, if the “light bulb” icon is not illuminated, it means we have not fully defined the fluid and as such, we will not be in a position to successfully model the fluid in a system.

Figure 6.1.4: Fluid Editor.
We can now set about developing our model on the flowsheet.
Step 2: Since we know the design flow rate for the system, place a Known or Assigned Flow node (available from the Boundaries tab) on the flowsheet to represent the system inlet. Then, place a Known or Assigned Pressure node (available from the Boundaries tab) on the flowsheet to represent the system outlet.
Select Steel Pipe or Duct from the Pipes tab on the Component Palette and place the mouse selector directly over the Known or Assigned Flow node. Left mouse-click on this inlet boundary to connect the pipe. Then, left mouse-click directly over the Known or Assigned Pressure node to complete the connectivity. The model connectivity should now be complete and appear as set out in Figure 6.1.5.

Figure 6.1.5: Base Model.
Step 3: Now we have completed the model connectivity, we can begin to edit the default design input information.
The design flow rate for the system is given as 2.23 x 10-3 m3/s (0.00223 m3/s). We can leave the fluid inlet temperature as 15 oC as this will not have an effect on our results in this case. The data-entry for the main inlet node (node 1) should now appear as per Figure 6.1.6.

Figure 6.1.6: Inlet Boundary – Data Entry.
The data-entry for the main outlet should appear as per Figure 6.1.7.

Figure 6.1.7: Outlet Boundary – Data Entry.
Now we have completed the data-entry for our boundaries, the final step is to define the properties of the pipe. We can therefore set the pipe diameter to 5.7 cm (0.057 m) with a length of 1.0 M. The data-entry for the pipe should appear as per Figure 6.1.8.

Figure 6.1.8: Pipeline Data Entry.
Step 4: Calculate the model using the Calculate button located at the top of the flowsheet. The model solves without any warnings.
We can see from the results in the pipe that FluidFlow has estimated the pressure loss to be 223.3 Pa. The Pressure Gradient is also calculated to be 223.3 Pa/m and since the pipe is 1.0 m in length, this matches the overall pressure loss in the line. We can see that the Loss Correlation is Power Law and the fluid phase state is described as Non-Newtonian. The viscosity of the fluid is calculated along with the density, wall shear stress and fluid shear rate. The results are outlined in Figure 6.1.9.
Note, the calculated result of 223 Pa compares well with the test data for this line as the test indicated a pressure loss of circa. 215 Pa.

Figure 6.1.9: Pipe -1 Calculated Results.
7. Settling Slurry Flow
FluidFlow includes five pressure loss correlations for modeling settling slurry flow and three correlations for determining maximum deposition velocity. Users can assign any of these correlations to a slurry system design.
Let’s firstly consider the pressure loss correlations.
Durand: The method used in the Slurry module is more properly called the Durand-Condolios-Worster correlation. The Durand method uses the d50 particle size only. Size distribution data entry is not used in the calculation.
WASC: This is the default calculation method used by FluidFlow. This method uses the d50 & d85 particle size. Size distribution data entry is not used in the calculation.
WASP: This method is an expansion/refinement of the Durand method using size distribution data to define stratified and homogenous concentration layers. The friction loss of each layer is then calculated using slurry rheology and the Durand correlation. Calculated pressure losses of each layer are summed to provide a total pressure loss in the pipe.
Four-Component Model: This modeling approach considers the slurry to be made up of four component parts: 1) a carrier fluid (typically water), 2) pseudo-homogeneous mixture, 3) heterogeneous solids and 4) fully stratified solids. The friction loss of each layer is then calculated and summed to provide a total pressure loss in the pipe.
Liu Dezhong: The method proposed by Liu Dezhong is a two-component method and has been successfully used in China for the design of short distance (less than 4 km) slurry pipelines with broadly graded size distribution The smaller particles are considered to form a pseudo-homogeneous carrier fluid. Depending on the fluid’s overall particle size distribution and concentration it has either Newtonian or non-Newtonian Bingham Plastic properties. The larger particles are assumed as a heterogenous suspension.
We described, in brief, the five different pressure loss correlations available in FluidFlow.
Now let’s consider the three correlations for determining maximum deposition velocity (Vsm):
Vsm Option 1: WASC Generalized Relationship.
Vsm Option 2: As a Function of particle size.
Vsm Option 3: Oroskar & Turian.
1. Calculation Settings – Settling Slurry Flow
Before we consider modeling our system, we need to give careful consideration to the Calculation Settings we wish to apply to the model. To review the Calculation Settings select: Options | Calculation | Non-Newtonian & Slurry (Figure 7.1.1).

Figure 7.1.1: FluidFlow Slurry Calculation Settings.
We can change settings by selecting the drop-down menu options as shown in Figure 7.1.1.
2. Settling Slurry Design Exercise 1
Coal is to be transported through a pipe with a length of 10 ft and an I.D. of 17.3 inches and a solids concentration (Cvd) of 25%. The design flow rate is 0.471 m3/s and the coal has the following properties:
Solids Density: 1400 kg/m3
Bulk Density: 840 kg/m3
Solid Sliding Bed Coefficient: 0.44
The particle sizes yield a d50 of 2.0mm and d85 of 2.8mm. Calculate the maximum limit of deposition velocity (Vsm).
Note, the solids data is already included in the FluidFlow database. This can be accessed at: Database | Solids | Coal (WASC). We therefore don’t need to define a new solid in the database.
Step 1: The first thing we need to do is consider the Calculation Settings. In this case, we know the d50 and d85 values and as such, we will select Wilson Addie Sellgren Clift (WASC) pressure loss correlation.
In this example, we will also select the WASC generalized relationship to determine the Vsm deposition velocity.
We can now set about developing our model on the flowsheet.
Step 2: Since we know the design flow rate for the system, place a Known or Assigned Flow node (available from the Boundaries tab) on the flowsheet to represent the system inlet. We are going to terminate this pipe with an open pipe node, i.e., discharging at atmospheric pressure. We can therefore select Steel Pipe or Duct from the Pipes tab on the Component Palette and place the mouse selector directly over the Known or Assigned Flow node. Left mouse-click on this inlet boundary to connect the pipe.
Then move the mouse selector across to the right hand side and left mouse click in the position where we wish to terminate the pipe. You will notice that the pipe has automatically terminated with an open pipe node.
The model connectivity should now be complete and appear as set out in Figure 7.1.2.

Figure 7.1.2: Base Model.
Step 3: Now we have completed the model connectivity, we can begin to edit the default design input information.
The design flow rate for the system is given as 0.471 m3/s, the concentration of solids by volume is 25%, the d50 and d85 are 2 and 2.8 mm respectively and the solid to be transported is of course, coal. We need to assign a carrier fluid to the slurry, in this case we will use water. The data-entry for the inlet boundary node should appear as per Figure 7.1.3.

Figure 7.1.3: Inlet Boundary – Data Entry.
We shall retain the default data for the open pipe outlet. Now let’s edit the pipe data.

Figure 7.1.4: Pipe Data Entry.
Step 4: Calculate the model using the Calculate button located at the top of the flowsheet. The model solves without any warnings. Figure 7.1.5 provides an overview of the results.

Figure 7.1.5: Pipe -1 Calculated Results.
We can see that FluidFlow has estimated the pressure loss in the pipe to be 0.28 ft fluid and the velocity in the line is calculated to be 10.19 ft/s. We can also see that the software has established the composition mass % of the liquid and solids, i.e., 68.2% liquid and 31.8% solids.
The Cvd deposition velocity at the defined concentration (25% by volume) is given as 2.97 ft/s and the deposition velocity (Vsm) is given as 6.33 ft/s. This is the critical deposition velocity for the plant. Furthermore, if we select the Chart tab, we can view the slurry pipe resistance curve and the duty point on the curve. Figure 7.1.6 illustrates the system resistance curve for pipe node -1.

Figure 7.1.6: Pipe -1 Pipe Resistance Curve.
FluidFlow also allows us to determine the solids delivered. We can check this data by viewing the results for a boundary node. Figure 7.1.7 shows the results for the open pipe boundary node (system outlet).

Figure 7.1.7: Open Pipe Boundary.
One of the unique features of FluidFlow is that, although we have only specified the d50 and d85 in this case, the software automatically develops a Rosin-Rammler particle size distribution curve which means, we can now apply any of the five correlations to the model.
To view the Rosin-Rammler curve, select a known pressure or in this case, know flow boundary node and select the Chart tab. Figure 7.1.8 shows a typical Rosin-Rammler curve as developed by FluidFlow.

Figure 7.1.8: Rosin-Rammler Curve.
8. Pulp & Paper Stock Flow
When modeling pulp and paper stock flow systems, we firstly need to consider the Calculation Settings we wish to use for the simulation.
1. Calculation Settings – Pulp & Paper Stock Flow
FluidFlow includes two pressure loss correlation options for pulp and paper systems, TAPPI & Moller. To view these options select: Options | Calculation | Pulp & Paper Stock.

Figure 8.1.1: FluidFlow Pulp & Paper Stock Calculation Settings.
We can change settings by selecting the drop-down menu options as shown in Figure 8.1.1.
TAPPI Pressure Loss Method: If you have selected "TAPPI" as the preferred pressure loss correlation option, you can then choose from a range of pre-defined pulp types stored in the software database. The description of these pulp types is outlined in Table 8.1.1.
Table 8.1.1: Pre-defined Pulp Types (TAPPI).
| No. | Description | No. | Description |
| 1 | Unbeaten aspen, sulfite never dried | 9 | Refiner groundwood, CSF 150 |
| 2 | Long-fibered kraft, never dried CSF 725 | 10 | Newsprint broke, CSF 75 |
| 3 | Long-fibered kraft, never dried CSF 650 | 11 | Refiner groundwood (hardboard) |
| 4 | Long-fibered kraft, never dried CSF 550 | 12 | Refiner groundwood (insulating board) |
| 5 | Long-fibered kraft, never dried CSF 260 | 13 | Hardwood NSSC, CSF 620 |
| 6 | Bleached kraft pine, dried and reslurried | 14 | Long-fibered kraft, dried and reslurried |
| 7 | Kraft birch, dried and reslurried | 15 | Bleached kraft pine, dried and reslurried (SS Pipe) |
| 8 | Stone groundwood, CSF 114 | 16 | Long-fibered kraft pine, never dried CSF 725 (SS Pipe) |
Notes:
CSF: Is the Canadian Standard Freeness.
Moller Pressure Loss Method: If you have selected "Moller K" as the preferred pressure loss correlation option, you simply enter the values for Fiber Aspect Ratio and Freeness of Pulp.
2. Pulp & Paper Stock Design Exercise 1
Description: A pipeline transports pulp/paper stock with a wt% oven dry concentration of 2.7 %. The pipeline has a length of 72.6 M (approx. 238 ft), an I.D. of 300mm and the pipe absolute roughness is 0.00087mm. The system flow rate is 281 m3/h and the water temperature is 30oC. The pipe also experiences a change in elevation from 0 m to 19 M. The aspect ratio is 60 and the pulp has a freeness of 500 Csf.
Determine the overall pressure loss in the pipeline.
Step 1: The first thing we need to do is consider the Calculation Settings. In this case, we know the aspect ratio is 60 and the pulp has a freeness of 500 Csf. We will therefore select Moller K as the pressure loss correlation and enter this data for the Calculation Settings.
We can now set about developing our model on the flowsheet.
Step 2: Since we know the design flow rate for the system, place a Known or Assigned Flow node (available from the Boundaries tab) on the flowsheet to represent the system inlet. We are going to terminate this pipe with a Known or Assigned Pressure node discharging at atmospheric pressure. We can select Steel Pipe or Duct from the Pipes tab on the Component Palette and place the mouse selector directly over the Known or Assigned Flow node. Left mouse-click on this inlet boundary to connect the pipe.
Then move the mouse selector across to the right hand side and left mouse click directly over the Known or Assigned Pressure node to complete the connectivity. Note, when developing the model connectivity, the pipeline is shown as sloping upwards to represent the pipe incline of 0 to 19 m.
The model connectivity should now be complete and appear as set out in Figure 8.1.2.

Figure 8.1.2: Base Model.
Step 3: Now we have completed the model connectivity, we can begin to edit the default design input information. The design fluid is water with a temperature of 30oC and the flow rate for the system is given as 281 m3/h. We can therefore set the Flow Direction for the inlet boundary node to Into Network and enter this data. Finally, we can set the wt% oven dry concentration of 2.7 %. The data-entry for the inlet boundary node should appear as per Figure 8.1.3.
v
Figure 8.1.3: Inlet Boundary – Data Entry.
We only have one parameter which we must edit for the system outlet, the elevation. Set the elevation of this outlet to 19 m. The data-entry for the outlet boundary node should appear as per Figure 8.1.4.

Figure 8.1.4: Outlet Boundary – Data Entry.
Now let’s edit the pipe data.

Figure 8.1.5: Pipe Data Entry.
Step 4: Calculate the model using the Calculate button located at the top of the flowsheet. The model solves without any warnings. Figure 8.1.6 provides an overview of the results.

Figure 8.1.6: Pipe -1 Calculated Results.
We can see that FluidFlow has estimated the overall stagnation pressure loss in the pipe to be 22 m fluid. We can also see that the software has established the composition mass % of the liquid and solids, i.e., 97.3% liquid and 2.7% pulp/paper.
9. Auto-Equipment Sizing
FluidFlow includes a powerful auto-size feature which allows engineers to automatically size a range of elements such as pipes, centrifugal pumps, fans, compressors, PD pumps, orifice plates, nozzles, pressure and flow control valves. Pressure relief valves and bursting disks can also be auto-sized to API & ISO standards for liquids, gases, steam and two-phase flow systems.
1. Auto-Equipment Sizing Design Exercise 1
This example involves designing a cooling water distribution system to a bank of heat exchangers where we shall use orifice plates to balance the flow distribution. We shall also use the auto-sizing functions to develop the system design and size the pipes, pump, and orifice plates.
Problem Statement:
It is desired to provide a balanced cooling water flow to four shell and tube heat exchangers HE1, HE2, HE3 and HE4. The size of the heat exchangers has already been determined from the process requirement and is summarized in Table 1.
Table 1: Heat Exchanger Data.
| Item | Heat Load (kW) | Tube Length (M) | Tube Diameter (mm) | Number of Tubes |
|---|---|---|---|---|
| HE1 | 370 | 4 | 20 | 20 |
| HE2 | 250 | 4 | 20 | 20 |
| HE3 | 370 | 4 | 20 | 20 |
| HE4 | 250 | 4 | 20 | 20 |
The cooling water is to flow through the heat exchangers and the design system inlet temperature will be 15°C. The design temperature rise of the cooling water across each heat exchanger is 30°C. The elevation of all elements in this model is zero. The design duty pressure rise for this system is also known, 2.5 bar.
Building the model in the FluidFlow flowsheet:
- Place two known pressure boundary nodes on the flow sheet.
- Using the steel pipe element, connect the known pressure boundary nodes together as per Figure 1 below.
- Add the branch pipe connections, ensuring the branch at each tee junction is assigned correctly.
- Insert the heat exchangers into each branch line.
- Insert thin orifice plates into the branch pipe connection serving each heat exchanger.
When complete, the model should appear as per Figure 9.1.1.
The basic model connectivity should appear as set out in Figure 1.

Figure 9.1.1: Base Model.
Each element placed on the flowsheet is provided with default data which the engineer can easily edit based on known design parameters. In this case, we will define the pipe lengths as set out in Table 2. Note, we will accept the default data provided by FluidFlow for the boundary nodes.
Table 2: Pipe Length Data.
| Pipe User Number | Pipe Length (M) | Pipe User Number | Pipe Length (M) |
|---|---|---|---|
| -19 | 5 | -2 | 5 |
| -14 | 5 | -4 | 5 |
| -12 | 5 | -5 | 5 |
| -20 | 5 | -7 | 2.5 |
| -15 | 5 | -8 | 2.5 |
| -9 | 5 | -10 | 1.25 |
| -21 | 5 | -11 | 1.25 |
| -16 | 5 | -3 | 1.25 |
| -6 | 5 | -18 | 1.25 |
| -22 | 5 | -1 | 1 |
| -17 | 5 |
Select all the heat exchangers at once by holding the SHIFT key and left mouse-clicking on each. All heat exchangers should now be highlighted on the flowsheet. From the Input tab of the Data Palette, set the Heat Loss Model to Fixed Transfer Rate, the heat transfer direction to Into the Network and the Heat Transfer Unit to kW. We have now set all common parameters for the heat exchangers in one step.
The next step is to define the heat load for each heat exchanger (see Table 1).
The design pump pressure rise is 2.5 bar. We can therefore set the centrifugal pump to Automatically Size from the Input Tab on the Data Palette. In doing so, we have two sizing options available: Size for Flow and Size For Pressure Rise. Select Size For Pressure Rise and define the Design Pressure Change as 2.5 bar.
Using the data available for the heat exchangers, we can determine the design mass flow rate from the heat balance (Q = m x c x ΔT). The heat transferred to the cooling water will therefore be:
Heat Transferred (W) = mass flow (kg/s) x specific heat capacity (J/kg) x temperature rise (°C)
The specific heat of water at 30°C is approx 4154 J/kg, so from Table 1 we see that the mass flow needed to HE1 will be 370000 / (4154 x 30) = 2.969 kg/s. Summarizing in Table 3.
Table 3: Mass Flow Rates.
| Heat Exchanger | Mass Flow (kg/s) |
|---|---|
| HE1 | 2.969 |
| HE2 | 2.006 |
| HE3 | 2.969 |
| HE4 | 2.006 |
| Total | 9.95 kg/s |
Since we can auto-size our components, we can define the design flow rate at each orifice plate by setting the Automatically Size option on the Input tab of the Data Palette to On. We now have two sizing models to choose from, Size for Flow and Size for Pressure Loss. As we know the flow rate, select Size for Flow. The next step is to enter the mass flow rates noted in Table 3 for each orifice plate.
The Sizing Model for pipes is Economic Velocity by default. This means that FluidFlow will determine the Exact Economic Size pipe diameter based on the calculated Economic Velocity. This velocity is a function of the fluid physical properties, the pipe materials, various capital and installation costs and the operating hours/year. This value is calculated from the Generaux equation and the calculation uses the values and constants stored in the pipe sizing database. Economic velocity is changing (generally decreasing) with time, particularly as energy costs have increased rapidly in recent times. Flite Software keeps these values up to date, which is one of the many reasons you should keep your software current. Economic velocity is meant to be a guide for pipe sizing; it is NOT a strict criteria for sizing pipes. For example you would not use this value to size pipes where two phase flow is present, or where plant operation is intermittent, or where materials can degrade at high velocities, or for Non-Newtonian flows.
We wish to develop an efficient system design and as such, we are going to retain the Economic Velocity sizing model.
We are now in a position to calculate the model. The solved system should appear as set out in Figure 9.1.2.

Figure 9.1.2: Solved Model – Default 2 Inch Pipes.
The flow distribution has been shown and if we view the results for any of the four heat exchangers, we can see that the inlet temperature is 15°C and the outlet temperature is 45°C (based on our design 30°C temperature rise).
Note, we also have three warning messages indicating high velocities in the pipelines highlighted in RED.
A quick check on the results for each of the pipes with a high velocity warning indicates velocities in the range of 4.5m/s which is considered high. We therefore need to review the pipe diameter. The diameter of each of these pipes is the default value of 2 inch which is 52.5mm. FluidFlow has determined an economic pipe size of approx. 101mm for each of these three pipes. We therefore need to select the next closest standard size match. Let’s try a 4 inch schedule 40 pipe.
You can multi-select the three pipes by holding the SHIFT key and left mouse-clicking on each pipe. From the Input tab on the Data Palette, access the pipes database and change the pipe to 4 inch schedule 40 pipe. Press Calculate to refresh the results for the system.
If we view the results for the orifice plates, we can see that FluidFlow has automatically determined the K value and the size of orifice required to provide the desired mass flow rate. The pump duty has also been established for us as 9.95 kg/s @ 2.5 bar (26 m fluid).
The warnings have also been corrected and as such, it can be considered that the system is now a relatively efficient design.
Based on the data entry, FluidFlow has therefore automatically sized the pipework, pump and orifice plates for us, thus simplifying the design process and reducing design time considerably.
The final design should appear as set out in Figure 9.1.3.

Figure 9.1.3: Solved Model – Updated Pipe Diameters.
Design Note:
When using the auto size function, it’s important not to over-constrain the model as this could lead to model convergence difficulties. For instance, in this example, we could have set the sizing model for the pump to Size for Flow. As we had effectively already defined the total flow in the system by defining the flow rate at each orifice plate, we would have duplicated the flow in the system. It is best to avoid duplicating design parameters when developing your model.
10. FluidFlow FAQ’s
-
How has FluidFlow been verified?
FluidFlow's calculation accuracy is rigorously verified through:
- Comprehensive testing against published engineering data
- Validation with real-world operating systems
- Continuous benchmarking against industry standards
- An extensive library of Quality Assurance test models that comes installed with the software
Each new software version undergoes thorough benchmarking to ensure consistent reliability and accuracy.
With industry applications dating back to 1984, FluidFlow has evolved through continuous development to incorporate the latest solution technologies, providing engineers with a fast, accurate, and effective pipe flow simulation tool.
Quality Assurance forms the foundation of our development process, ensuring our products meet the highest standards from initial design through final release.
Flite Software NI Ltd maintains ISO9001:2008 certification, demonstrating our commitment to quality management systems.
-
Can FluidFlow be used to model heat transfer in piping systems?
Yes. All FluidFlow modules include heat transfer functionality as standard. This feature allows you to perform pipe heat loss calculations while accounting for local wind speed, surface emissivity, and ambient temperature.
The software includes a standard library of pipe insulation materials from which you can select the required thickness for each pipe. Convection, conduction, and radiation losses are calculated automatically.
When performing heat loss calculations, engineers can either enter a U value or let the software calculate this parameter automatically.
The software also allows engineers to analyze the effect of a fixed temperature change or energy transfer rate across pipes or fittings, as well as calculate heat transfer in buried pipes. FluidFlow maintains a complete energy balance throughout all piping systems.
-
Can FluidFlow be used to model a non-Newtonian fluid?
Yes. The Slurry module allows you to choose from the following non-Newtonian viscosity models:
- Bingham Plastic
- Herschel Bulkley
- Power Law
- Casson
Engineers can create a new non-Newtonian fluid by either entering the shear rate vs shear stress relationship or directly defining the fluid viscosity constants. This information is typically available from fluid rheology data.
-
Can FluidFlow be used to model a settling slurry?
Yes. Users can choose from a total of eight correlations when modelling settling slurry systems. When developing the model, the software will enunciate warning messages to assist the engineer in developing an efficient system design. This includes messages identifying the risk of saltation or pipe blockage.
FluidFlow includes three correlation options for calculating deposition velocity and five options for analyzing the pump performance de-rating.
-
Can FluidFlow be used to model Fire Protection Systems?
Yes. FluidFlow includes sprinkler and fire hydrant nodes among its components, which come with a default database. Additional sprinklers can be added to the database by either entering a single nominal K value or entering the flow vs pressure loss relationship. Similarly, additional hydrants can be added by entering either a single K value or a pressure loss relationship of % open vs Kv/Cv.
When defining either of these items using a pressure loss relationship, FluidFlow automatically generates the curve fit.
-
Can I create a Template File in FluidFlow?
Yes. FluidFlow allows you to create template files for common components like pump stations and valve stations. These templates can be saved and inserted into any model, significantly accelerating your design process and ensuring consistency across projects.
See Creating Flowsheet Templates for a quick tutorial.
-
Do I have to enter the model into each module separately?
FluidFlow operates with integrated modules (Liquid, Gas, Slurry, Two-Phase) within a single software environment, allowing systems with multiple fluid types in one file. No module switching is required - the software automatically detects fluid phases based on operating conditions.
-
Can FluidFlow be used to model Pressure Relief Valves & Bursting Disks?
Yes, FluidFlow allows you to automatically size relief valves and bursting disks for liquid, gas, steam, and two-phase systems according to both API and ISO standards. When using the API method, the software also suggests the most appropriate standard API size for your consideration.
The software comes with a standard library of relief valve models and allows you to model specific manufacturers' relief valves. Engineers can expand this library by adding new models as needed.
For comprehensive guidelines on sizing relief valves, check Relief Valve Sizing Documentation. This covers liquid, gas, steam, and two-phase flow systems with detailed examples.
-
Can I model closed-loop systems?
Yes. FluidFlow fully supports closed-loop configurations. For guidance on modeling these systems, refer to the document below.
-
Can I model pipe inclination/elevation changes?
Yes. Elevation data can be set at each node, with automatic calculation of gravitational head contribution to system pressure. This applies to all flow systems.
-
Can I model non-standard fittings?
Yes. FluidFlow offers proprietary nodes for modeling pressure loss in non-standard fittings. You can select from K, Kf, Kv/Cv, or User-Defined Generic nodes. The User-Defined Generic node allows you to define a curve relationship of pressure loss as a function of flow rate for any fitting.
-
Can I close-off or isolate sections of a model?
Yes. To isolate sections of a model, select the relevant pipes and fittings and set their Status to "Off or Closed" in the Input Editor. When you recalculate your model, you'll see that no flow occurs in these sections.
-
Can I add pumps to the database?
Yes. FluidFlow allows you to add custom pumps to the database with complete manufacturer performance data including head-flow curves, efficiency points, and NPSH requirements. This enables accurate equipment modeling for your specific applications. For step-by-step instructions, refer to Modeling Centrifugal Pumps in FluidFlow Using Manufacturer Data, which covers everything from database configuration to performance analysis, system optimization, and cavitation prevention.
-
Can I apply pump affinity laws?
Yes. FluidFlow allows you to modify pump operating speed or impeller diameter directly in the Input Editor. This feature works when you've specified the minimum and maximum speed ranges or impeller diameter ranges for the pump in the database.
When you adjust either parameter, the software automatically applies the affinity laws to calculate the resulting effects on duty pressure rise, efficiency, power requirements, and NPSHr.
-
Can I add fans or compressors to the database?
Yes. FluidFlow comes with a comprehensive library of fans and compressors. Engineers can easily expand this library by adding new equipment models as needed.
For detailed guidance, refer to Modeling Fan and Blower Performance Curves in FluidFlow Using Manufacturer Data.
-
Can I model control valves?
Yes. FluidFlow supports control valve modeling with the following types:
- Flow Control Valves - regulate flow rates to maintain setpoints
- Pressure Control Valves - maintain specific pressure conditions
- Differential Pressure Control Valves - maintain pressure differentials across system sections
- Pressure Reducing Valves - maintain downstream pressure at a specified setpoint
- Pressure Sustainer Valves - maintain upstream pressure at a specified setpoint
These components are located in the "Controllers" tab of the Data Palette. For detailed instructions on modeling vendor-specific control valves or using the automatic sizing features, refer to the following comprehensive guide:
Control Valve Modeling in FluidFlow: Auto-Sizing and Manufacturer Data Integration
-
Can I model the effect of partially closing isolating/throttling valves?
Yes. Users can enter a value for valve opening % on the Input Editor for all manual valves. FluidFlow automatically calculates the corresponding K value and pressure loss based on current system conditions. When you adjust the opening percentage, the software recalculates the effects on overall system performance.
-
Can I model PD Pumps?
Yes. FluidFlow includes a built-in library of PD Pumps and Rotating PD Pumps. You can add custom pump models to the database once, making them available for all future projects. For complete details, refer to Modeling Positive Displacement Pumps in FluidFlow.
-
Can I plot composite pump curves?
Yes. FluidFlow enables you to generate composite pump capacity curves for pumps configured in series or parallel arrangements. This capability provides an effective visualization tool for communicating system design specifications and pump performance characteristics. For detailed instructions, refer to Composite Pump Curves in FluidFlow: Visualizing Series & Parallel Pump Performance for Optimal System Design.
-
Can I plot Energy & Hydraulic Grade Lines?
Yes. FluidFlow allows you to plot Energy & Hydraulic Grade Lines for your system. These graphs provide a clear visual representation of energy levels throughout your system, helping engineers quickly identify potential problem areas.
For more information, see Energy & Hydraulic Grade Lines (EGL/HGL): Advanced System Analysis in FluidFlow.
-
Can I model ductwork ?
Yes. FluidFlow can model ducted ventilation systems. When placing a "Steel Pipe or Duct" on the flowsheet, you can set the duct as either circular or rectangular using the Geometry field in the Input Editor. You can also set "Use Database Size" to "No" to specify custom dimensions for your ducts. A common approach is to fix the flow rate at each outlet boundary, specifying the required demands at each user point.
-
Can FluidFlow detect choked flow conditions?
Yes. FluidFlow automatically detects choked flow conditions and limits the mass flow rate accordingly. Choked flow can occur in two situations: when the flow path experiences a change in cross-sectional area, or when flow exits a pipe into a vessel or atmosphere. The software detects both conditions and displays a warning message indicating the presence or likelihood of choked flow.
When choked flow occurs at a change in cross-sectional area (such as at a valve, orifice plate, or pipe reducer), the warning message appears as follows:

When end-point choking occurs in a pipe, the warning appears as follows:

-
Can FluidFlow model crude oils?
Yes. You can easily add petroleum fractions or crude oil to the fluids database. Simply enter the fluid's specific gravity along with either the TBP or ASTM D86 curve. Note that when you define the ASTM D86 curve, the software automatically creates the TBP curve—and vice versa.
-
Can I add pipe sizes & classification to the database?
Yes. FluidFlow allows you to add custom pipe sizes and classifications to the database. You can define new schedules for each pipe size to match your specific project requirements or industry standards. Once added, these custom entries become available for use across all your models.
